| Номер лота | 1246279 |
| Город | Донецк |
| Район | Калининский |
| Улица | Разенкова |
| Ориентир | парк Гулливер |
| Кол. комнат | 1 |
| Цена |
3 200 000 RUB
|
| Этаж/этажность | 11/11 |
| Тех. этаж | есть |
|
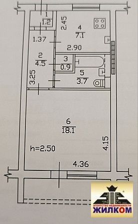
Площадь: общ./жил./кухня |
38.3/18.1/7.1 |
| Санузел | Совмещенный |
| Состояние | Нормальное |
| Материал дома | панель |
| Лоджия | стекленная |
| Агентство | АН ЖИЛКОМ Донецк ул. Челюскинцев, 151 |
| Телефон | +79497776564 +79895460530 |
| Дата | 2026-01-22 |
| Ссылка |
https://zhilkom.net/flat-sale/1246279/
|
| Фото |
|
| Просмотров: 125 | |
|
Продают 1-к. квартиру в Калининском районе на улице Разенкова.
11 этаж в доме галерейного типа. Есть тех. этаж. Крыша не течет. Жилое состояние. Мебель и техника остаются. Большая застекленная лоджия. Окна металлопластиковые. Вместительная кладовка. Санузел совмещённый. В доме 2 лифта. Рядом остановка транспорта, магазины, школа, детский сад. В 5 минутах ходьбы парк Гулливер. |